Resolution House Scarborough
Price: Guide Price £4,500,000
Address: Resolution House,
Lake View,
Seamer,
Scarborough,
North Yorkshire
YO11 3ZB
Key Features:
- High Specification HQ office building
- Approx 50,073 sqft (4,652 sqm)
- Site Area 4.25 acres (1.83 Ha)
- EPC Rating A
Location
The property is located on the south side of the North Yorkshire coastal town of Scarborough known by many as a tourist destination, Scarborough also has an extensive business and employment base, most of which is located in the close vicinity of the subject property at Eastfield/Seamer. The property overlooks the A64 which provides direct access to the town centre and connects through to York in the southwest. There is also easy access to the property via rail with the Seamer Railway Station lying approximately quarter of a mile to the north of the property. This railway station offers regular connections to York via Malton and the East Coast Mainline.
General Overview
The property comprises a substantial detached office building, constructed in 2002 as the new HQ for Scarborough Building Society. It was refurbished in 2017 prior to the occupation by Sirius Minerals and those works included a wholescale renewal and installation of new air handling and cooling equipment.
The property provides accommodation over ground, first and second floors with plant room at third floor. It sits in extensive grounds in a prominent position at the southern gateway to the town centre and Scarborough Business Park.
The property is constructed of part brick and part block work with aluminium framed double-glazed fenestration throughout under a part flat and part mono-pitched steel-clad roofing system. Internally the office space is fitted out to a high specification offering a variety of open plan and individual office suites. The principal specification points are highlighted below:
- Spacious reception area with security entrance swipe system.
- 2 x 13 person Kone passenger lifts.
- Double glazing with internal blinds
- LED lighting throughout principal areas
- Air Conditioning/Comfort cooling throughout, with 2 zones per floor and additional air conditioning to the Comms and IT rooms.
- Fully accessed raised floors.
- Fully equipped restaurant / canteen with kitchen and server.
- Gymnasium with adjoining changing and showering facilities.
- Built in conferencing facilities.
- Dedicated training/breakout areas.
- Chief Executive suite with shower and adjoining board room with kitchen.
- Secure deeds room with document storage and racking system.
The property has a sophisticated plant room at third floor with access to the roof void where much of the air conditioning and condensing plant is positioned.
Externally there is a tarmac covered car park with a capacity for approx. 153 car spaces.
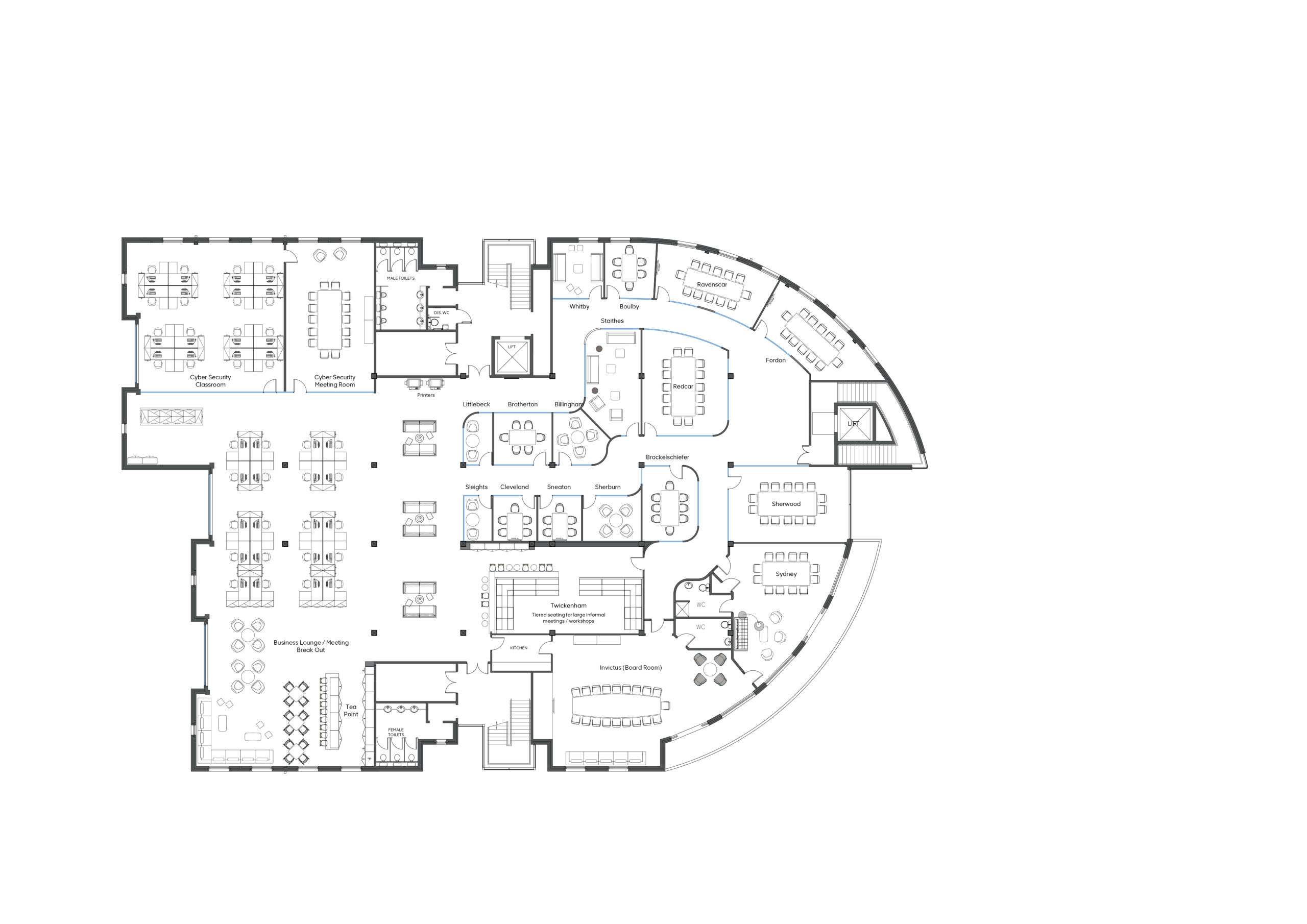
Current Layout
Copies of current floor plans area available. Briefly the layout is as follows:
- Ground Floor: Entrance foyer with security barriers, offices, staff gymnasium, staff canteen/café, fully fitted catering kitchen and support facilities, changing rooms, Wc’s, Medical Room, document storage room.
- First Floor: Mix of open plan and partitioned offices, kitchen area and staff break out areas.
- Second Floor: Mix of open plan and partitioned offices, suite of meeting rooms, Director’s office with WC and kitchen, Main Boardroom
Schedule of Floor Areas
The following is a summary of the Gross Internal and Net Internal Areas:
Approximate Gross Internal Areas (Taken from previous sales details)
| Floor | Sqft | Sqm |
| Ground | 16,910 | 1,570.98 |
| First | 16,663 | 1,548.03 |
| Second | 16,500 | 1,532.89 |
| Total | 50,073 | 4,651.90 |
Approximate Net Internal Areas (Taken from Architects Floor Plans)
| Floor | Sqft | Sqm |
| Ground | 14,482 | 1,345.41 |
| First | 14,476 | 1,344.85 |
| Second | 14,399 | 1,337.70 |
| Total | 43,357 | 4,027.96 |
Tenure
The property is registered freehold with Title Number NYK249498.
Business Rates
The property is listed in the Business Rates register with the following Rateable Value:
| Description | Effective Date | RV |
| Resolution House,
Lake View, Eastfield, Scarborough |
1st April 2023 |
£272,500 |
Planning & Development Considerations
Given the fact that the property is vacant, there may be scope to consider alternative uses and/or partial or additional development within the site area.
There is a fair amount of detail on the Planning History, the following being most relevant from a marketing/sale perspective:
Planning Ref: 00/00909/FL – Detailed Planning granted 19th December 2000 for: ‘Revised proposal for office development (Phase 1 & 2) with associated car parking’
This we believe is the consent, which was ultimately implemented, but only the Phase 1 element of the scheme was constructed. This leaves the Phase 2 elements, which comprise two 3 storey extension wings to the east and west of the main building, extending to a further 25,000 sqft per wing (i.e. 50,000 sqft in total), this would also include the extension of the car parking area to include additional car parking spaces to a combined total of 261 spaces.
In terms of alternative use and reference to Local Plan Policy, there is currently somewhat of a vacuum as the previous Scarborough Local Plan (adopted 2017) was in the process of a review, and that has now halted, with Scarborough now forming part of North Yorkshire Council. The result is that planning policy will now be set out within the emerging new NY Council Local Plan, and as governed by National Planning Policy via the new NPPF. Reference would be taken to the previous Local Plan and National policy in the event of any new application being made. The principle of change of use from Class B1 (Office) as consented, would now be considered in relation to the new Class E designation. This has amalgamated former use classes such as A1 (shops), restaurants, health/medical uses, creches, nurseries and indoor sports/recreation. In other words, the new Class E allows a mix of uses and flexibility. In addition, there are now provisions in planning law which allow permitted permanent change from a Class E use to Class C3 (residential dwellings) and to Class F (learning and non-residential institutions/educational use).
Disposal Terms
The Property is available For sale at a Guide Price of £4,500,000.
Alternatively occupational leasehold offers could be considered. Rental Rates on request.
All descriptions, dimensions, areas, reference to condition and other details are given in good faith and believed to be correct but intending purchasers / lessors should satisfy themselves as to the correctness.
Plans
Location Map
Property Brochure
Information Pack
- 5411-1~2
- 5411-1000L-A0-Resolution House Site Layout Plan - Copy
- 5411-1~4
- 5411-1003D-A1-Resolution House as built Elevations - Copy
- 5411-1005P-A1-Resolution House as built GF Layout - Copy
- 5411-1006F-A1-Resolution House as built 1st Floor Layout - Copy
- 5411-1007J-A1-Resolution House as built 2nd Floor Layout - Copy
- 5411-1008E-A1- Resolution House 3rd Floor Plant - Copy
EPC
Arrange Viewing
Christopher Fordy07809202300
christopherfordy@fordymarshall.com


















